£385,000
Lon Dirion, Abergele, Conwy
Key features
- Substantial family house
- Extensive conservatory
- Separate dining room
- Five bedrooms
- Integral double garage
- Mature gardens
- Popular Abergele location
- Freehold
- Council tax band - F
- EPC rating - C
- Substantial family house
- Extensive conservatory
- Separate dining room
- Five bedrooms
- Integral double garage
- Mature gardens
- Popular Abergele location
- Freehold
- Council tax band - F
- EPC rating - C
Full property description
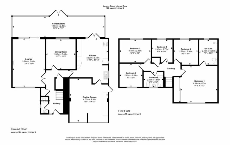
Entrance Hall
Cloakroom
Lounge - 5.8m x 3.84m (19'0" x 12'7")
Conservatory - 10.87m x 2.42m (35'7" x 7'11")
Dining Room - 3.49m x 3.48m (11'5" x 11'5")
Kitchen/Breakfast Room - 5.44m x 3.62m (17'10" x 11'10")
Stairs & Landing
Bedroom One - 4.39m x 4.27m (14'4" x 14'0")
Ensuite - 3.09m x 2.16m (10'1" x 7'1")
Bedroom Two - 3.7m x 2.66m (12'1" x 8'8")
Bedroom Three - 2.89m x 2.62m (9'5" x 8'7")
Bedroom Four - 2.94m x 2.86m (9'7" x 9'4")
Bedroom Five - 2.72m x 2.43m (8'11" x 7'11")
Bathroom - 2.35m x 1.84m (7'8" x 6'0")
Double Garage - 5.16m x 4.7m (16'11" x 15'5")
Outside
Services
Mains gas, electric, water and drainage are believed connected or available at the property. Solar panels on rear roof which are owned by the vendor. Please note no appliances are tested by the selling agent.
Directions
Interested in this property?
Try one of our useful calculators
Stamp duty calculator
Mortgage calculator





















